Company Logo
SIGN UP LOGIN

1536 S Mason Road, Saint Louis, MO 63131

$3,600,000
  • 1536 S Mason Road, Saint Louis, MO 63131 Main Photo

7 Total Photos [Click to View All]

Active
BEDS4 BATHS4 full 1 partial MLS#25066795
STATUSActive PROPERTY TYPEResidential - Single Family SUBDIVISIONSchrimper Estate SCHOOLParkway C-2

Property Description

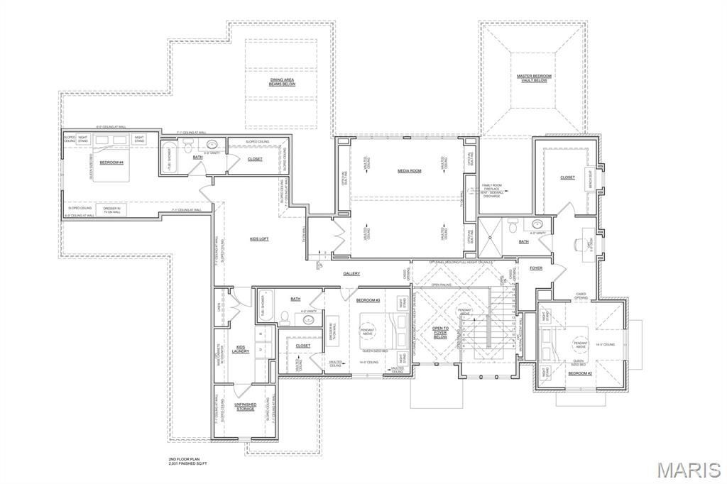
Discover an extraordinary opportunity to design and build a custom dream home with Benchmark Custom Homes on a sprawling 3.24-acre estate in prestigious Town & Country, MO, directly across from the serene beauty of Queeny Park. With expansive 300 x 470 ft dimensions, this private, park-like setting offers lush views, exceptional privacy, and a lot that accommodates a pool, all within one of St. Louis's most sought-after communities.This thoughtfully designed luxury residence features a private, estate-style layout with exceptional craftsmanship throughout. A dramatic two-story foyer welcomes you, with optional ceiling-height paneling and an abundance of natural light from walls of windows.The gourmet kitchen anchors the home with an oversized island, 48 professional range, and built-in 32 refrigerator and freezer. A true butler's pantry enhances both storage and entertaining. The adjacent dining area comfortably seats eight, while the kitchen and family room feature 10' ceilings that step up to 11', creating a bright, open gathering space.A main-floor office with double doors provides privacy and flexibility. Everyday function is elevated with an oversized carriage-style garage, a garage-entry mudroom, and a secondary interior mudroom.The primary suite occupies its own private wing, offering a true retreat. Vaulted ceilings and abundant windows enhance the space, while private access to a vaulted covered patio-with optional screening and outdoor kitchen-extends the living area outdoors. The spa-inspired primary bath includes an optional fireplace, two-person shower, freestanding soaking tub, dual vanities, and a generous walk-in closet with the option for a secondary laundry.The second floor continues the home's thoughtful separation of space. One wing features a private living suite with soaring 14'5 ceilings, a large bedroom, full bath, walk-in closet, and optional built-in desk-ideal for guests or multigenerational living. The opposite wing includes two additional ensuite bedrooms, a kids' loft, second-floor laundry, and a vaulted media room.All Benchmark Custom Homes include high-performance energy systems, a builder warranty, and a 10-year dry basement guarantee, providing peace of mind and long-term quality. With over 35 years as one of the area's most trusted builders, Benchmark delivers exceptional design, reliability, and craftsmanship.Final pricing is based on plan, specifications, and finishes. Renderings and floor plans are for illustrative purposes only. Final design, dimensions, features, and materials may vary based on buyer selections and construction requirements.

1536 S Mason Road | MLS# 25066795

This single family home located at 1536 S Mason Road, Saint Louis, MO 63131 is currently listed for sale with an asking price of $3,600,000. This property has 4 bedrooms and 4 full and 1 partial baths. S Mason Road is located in the Schrimper Estate subdivision within the Parkway C-2 school district. Search Schrimper Estate real estate on www.trophypa.com today.

Property Features

Property Type: Residential - Single Family
Basement: 9 ft + Pour
Basement: Yes
Cooling: Electric, Zoned
Garage: 3 car attached
Heating: Natural Gas, Hot Water, Zoned
Lot Size: 3.24 Acres
Taxes: $8,214

Feature Descriptions

Appliances: ENERGY STAR Qualified Appliances, Stainless Steel Appliance(s), Gas Cooktop, ENERGY STAR Qualified Dishwasher, Disposal, Exhaust Fan, Built-In Freezer, Microwave, Built-In Electric Oven, Convection Oven, Range Hood, Built-In Refrigerator, ENERGY STAR Qualified Refrig
Days on Site: 178
Exterior: Brick Veneer, Fiber Cement, Lap Siding, Stone Veneer,
Fireplace: Family Room
Lot: Adjoins Wooded Area, Near Park, Private, Wooded
Parcel#: 21P-42-0015
Sewer: Public Sewer
SQFT. Above Grade: 4575
Utilities: Electricity Connected, Natural Gas Connected, Sewer Connected, Water Connected
Water: Public

Local Schools

High School: Parkway West High
Middle School: West Middle
Elementary School: Mason Ridge Elem.
School District: Parkway C-2

Listed By / Shown

Listed By

Agency Name: Keller Williams Realty St. Louis

Shown By

Agency Title: Trophy Properties & Auction
Agency Phone: (855) 573-5263

IDX logo

Estimate Your Payment

Estimated Payment

$ 9,746.54 per month $8,012.04 Principal & Interest $684.50 Property Tax $1,050.00 Homeowner's Insurance

Change Payment Information

%
years/fixed
yearly
yearly (est.)
(Payments are an estimate and may vary by lender)

Login to My Homefinder

Pixel